Nos Colocations
Espace colocation du rez-de-chaussée : Zone Est
Espace Commun
Un grand espace commun à partager composé d’une cuisine ouverte dans une salle à manger de 38m². Très lumineux grâce à une grande baie vitrée donnant sur un balcon.
Une porte dédié donnant accès à la colocation depuis le parking privé sans escalier supplémentaire. Au même niveau une buanderie et un spa.
Vos espaces personnelles
Privé : Aile EST
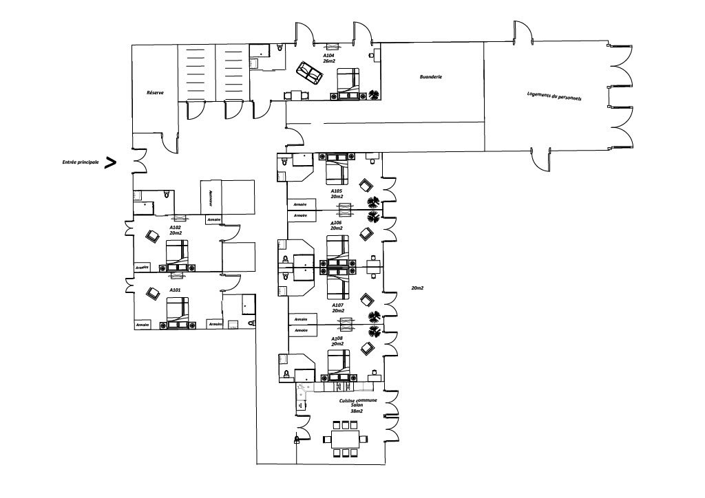
Espace Colocation du rez-de-chaussée avec 7 appartements personnels
Appartement 104
Plus grand espace personnel de la colocation avec ces 26m²
Appartement 105
Espace personnel de 20m² avec vu sur le champ et le jardin. Très ensoleillé et lumineux en été, profiter d'une terrasse pour vous relaxer.
Appartement 107
Espace personnel de 20m² avec vu sur le champ et le jardin. Très ensoleillé et lumineux en été, profiter d'une terrasse pour vous relaxer.
Appartement 106
Espace personnel de 20m² avec vu sur le champ et le jardin. Très ensoleillé et lumineux en été, profiter d'une terrasse pour vous relaxer.
Appartement 108
Espace personnel de 20m² avec vu sur le champ et le jardin. Très ensoleillé et lumineux en été, profiter d'une terrasse pour vous relaxer.
Appartement 101
Espace personnel de 20m² coté nord. Espace plus calme et silencieux.
Appartement 102
Espace personnel de 20m² coté nord. Espace plus calme et silencieux.
Espace colocation du 1er étage : Zone Est
Espace Commun
Salle à manger / cuisine ouverte
Grande salle de 38m² très lumineuse pour se retrouver et manger avec une cuisine ouverte suréquipée. Possède un balcon pour profiter pleinement de la vue
Un salon de coiffure et salle d'activités
Profiter d’être au premier étage pour accéder directement au salon de coiffure et à l’aile Nord contenant une salle de sport et de jeux pour des moments conviviaux
